Používame cookies

Súbory cookie a ďalšie technológie sledovania používame na zlepšenie vášho zážitku z prehliadania našich webových stránok, na to, aby sme vám zobrazovali prispôsobený obsah a cielené reklamy, na analýzu návštevnosti našich webových stránok a na pochopenie toho, odkiaľ naši návštevníci prichádzajú. Viac info

 

SHOWROOM/obchodné priestory s výkladmi na prenájom – Slovnaftská, Bratislava II

Ulica: Slovnaftská
Obec: Bratislava-Ružinov
Okres: Bratislava II
Kraj: Bratislavský kraj
Druh: Objekty
Typ: Prenájom
Typ objektu: Obchodné priestory
12,50 €/m2/mesiac

Popis nehnuteľnosti

Ponúkame na prenájom nové obchodné priestory v novo-rekonštruovanom objekte vo Vlčom Hrdle/Slovnaftská, Bratislava 2.

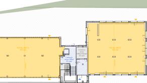
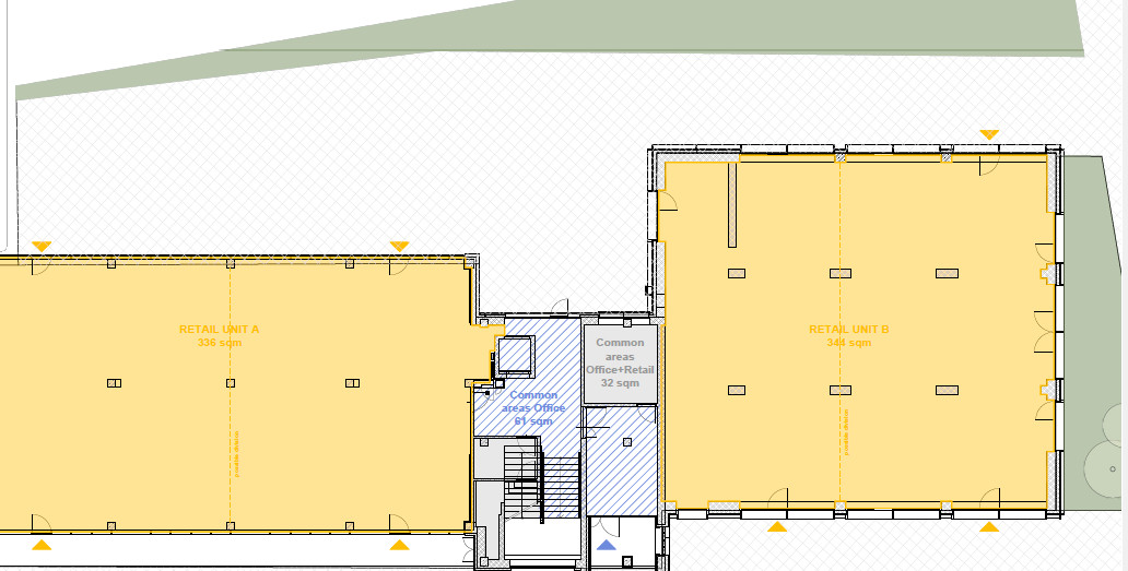
K dispozícií sú obchodné priestory o celkovej ploche cca 700m2.

Priestory je možné deliť na samostatné menšie prevádzky:
OP 336m2
OP 344m2
OP 154m2
OP 166m2
OP 170m2

Všetky priestory majú veľké výklady a viaceré vstupy s možnosťou umiestnenia aj automobilov!

Svetlá výška priestorov 3m..

Priestory sú v stave holopriestor a nájomca si ich môže pripraviť podľa svojich predstáv.
Prenajímateľ poskytuje kontribúciu na fit-out!

VHODNÉ na showroom, predajňa, klientske centrum, obchodná prevádzka...

Kuchynka a toalety je možné vybudovať priamo v priestoroch.
Nosnosť podlahy 2,5t/m2.

K priestorom je možné prenajať dostatočné množstvo parkovacích státí priamo pred vstupom do obchodných priestorov. Cena za parking 50€/miesto/mesiac + DPH.

K dispozícií na prenájom v objekte sú aj reprezentatívne administratívne priestory.

Nájomné za priestory 12,50€/m2/mesiac + prevádzkové náklady 3,50€/m2/mesiac + energie na základe spotreby + DPH.

Kaucia 2-mesačné nájomné vr. prevádzkových nákladov a DPH.

Záujemca neplatí províziu.

Viac informácii u uvedeného realitného manažéra.

Vlastnosti

Status:
aktívne
Vlastníctvo:
firemné
Stav:
novostavba
Úžitková plocha:
344 m2
Balkón:
nie
Energetický certifikát:
A
Status:
aktívne
Vlastníctvo:
firemné
Stav:
novostavba
Úžitková plocha:
344 m2
Balkón:
nie
Energetický certifikát:
A

Pozrieť na mape

Maklér

Kontaktný formulár

Podobné nehnuteľnosti