Používame cookies

Súbory cookie a ďalšie technológie sledovania používame na zlepšenie vášho zážitku z prehliadania našich webových stránok, na to, aby sme vám zobrazovali prispôsobený obsah a cielené reklamy, na analýzu návštevnosti našich webových stránok a na pochopenie toho, odkiaľ naši návštevníci prichádzajú. Viac info

 

Na prenájom obchodné priestory s výmerou 207,14 m², Trenčín - Za mostami

Obec: Trenčín
Okres: Trenčín
Kraj: Trenčiansky kraj
Druh: Objekty
Typ: Prenájom
Typ objektu: Obchodné priestory
11,98 €/m2/mesiac

Popis nehnuteľnosti

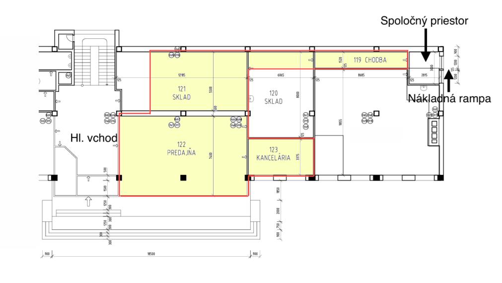
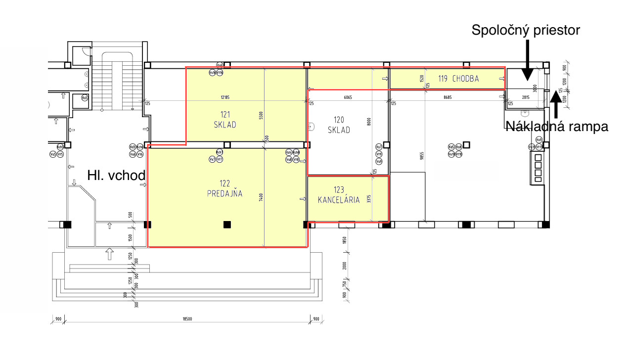
Ponúkame na prenájom obchodné priestory s celkovou výmerou 207,14 m² nachádzajúce sa na prízemí polyfunkčnej budovy v lokalite Trenčín – Za mostami.
Priestory majú vstup priamo z ulice, veľké presklené výklady a bočný prístup pre zásobovanie cez nakladaciu rampu.

Dispozícia:
predajňa – 89 m²
sklad – 69 m²
kancelária – 22 m²
chodba + nakladacia rampa
WC v spoločných priestoroch budovy

Vstup do objektu je možný 24 hodín denne, budova má vlastného informátora / vrátnika a možnosť stravovania priamo v objekte.

Výhody a služby:
možnosť prenájmu vyhradeného parkovacieho miesta
využitie zasadacej miestnosti (cca 30 miest)
možnosť využitia upratovacej služby (za príplatok)
bezplatná poštová schránka s doručovaním pošty
lekáreň, notár, čerpacia stanica a privádzač na D1 v blízkosti

Podmienky prenájmu:
NÁJOM 1 m² 5,99 € bez DPH mesačne

SLUŽBY 1 m² 5,99 € bez DPH mesačne

záujemca neplatí províziu RK


možnosť prenájmu ďalších priestorov v budove (kancelárie, sklady)

Ďalšie informácie Vám radi poskytneme v našej realitnej kancelárii v pracovné dni od 9:00 do 18:00 hod.

Vlastnosti

Status:
aktívne
Stav:
pôvodný
Úžitková plocha:
207.14 m2
Balkón:
nie
Status:
aktívne
Stav:
pôvodný
Úžitková plocha:
207.14 m2
Balkón:
nie

Pozrieť na mape

Maklér

Kontaktný formulár

Podobné nehnuteľnosti