Používame cookies

Súbory cookie a ďalšie technológie sledovania používame na zlepšenie vášho zážitku z prehliadania našich webových stránok, na to, aby sme vám zobrazovali prispôsobený obsah a cielené reklamy, na analýzu návštevnosti našich webových stránok a na pochopenie toho, odkiaľ naši návštevníci prichádzajú. Viac info

 

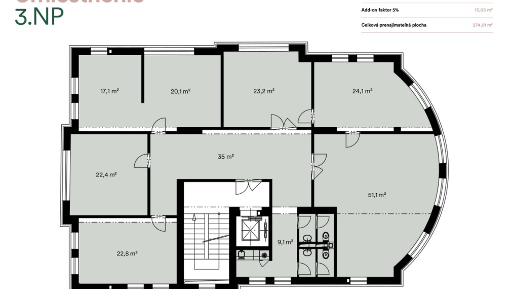
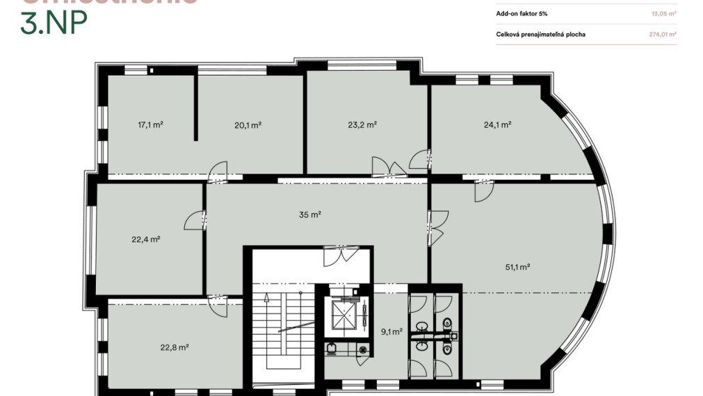
Reprezentatívny kancelársky celok 274m2 + 4 x parking, v historickej budove, Palisády – Staré Mesto

Ulica: Palisády
Obec: Bratislava-Staré Mesto
Okres: Bratislava I
Kraj: Bratislavský kraj
Druh: Objekty
Typ: Prenájom
Typ objektu: Kancelárie
14,50 €/m2/mesiac

Popis nehnuteľnosti

Ponúkame na prenájom kancelárske priestory v reprezentatívnej administratívnej budove na Palisádach, Bratislava 1 – Staré Mesto.
Budova sa nachádza v centre Palisád a disponuje parkovacími miestami.

K dispozícií na prenájom je administratívny celok, umiestnený na 3.NP:
274,01m2 (vr. 5% add on budovy) celok 7 kancelárií s kuchynkou a delenými toaletami.

Priestory sú vybudované v štandarde, klimatizované.

Voľné ihneď. Doba nájmu min. 60 mesiacov.

Veľkou výhodou je možnosť prenájmu až 4 parkovacích státí v garáži. Cena parkovacieho státia je 160€/miesto/mesiac + DPH.

Nájomné je 14,50€/m2/mesiac (3.973,15,-€) + spoločné prevádzkové náklady 6€/m2/mesiac (1.644,06€) + vlastná spotreba energií (elektrika, voda, teplo, chlad..) + DPH.
Spolu 5.617,21€/mesiac + vlastná spotreba energií + DPH.

Kaucia 3-mesačné nájomné.

Záujemca neplatí províziu.

Viac informácii u uvedeného realitného manažéra alebo na obhliadke.

Vlastnosti

Status:
aktívne
Vlastníctvo:
firemné
Stav:
úplne prerobený
Úžitková plocha:
274.01 m2
Balkón:
nie
Výťah:
áno
Energetický certifikát:
B
Zateplený objekt:
nie
Status:
aktívne
Vlastníctvo:
firemné
Stav:
úplne prerobený
Úžitková plocha:
274.01 m2
Balkón:
nie
Výťah:
áno
Energetický certifikát:
B
Zateplený objekt:
nie

Pozrieť na mape

Maklér

Kontaktný formulár

Podobné nehnuteľnosti