Používame cookies

Súbory cookie a ďalšie technológie sledovania používame na zlepšenie vášho zážitku z prehliadania našich webových stránok, na to, aby sme vám zobrazovali prispôsobený obsah a cielené reklamy, na analýzu návštevnosti našich webových stránok a na pochopenie toho, odkiaľ naši návštevníci prichádzajú. Viac info

 

Obchodné priestory na predaj, nachádzajú sa v Malackách na Záhoráckej ulici

Ulica: Záhorácka
Obec: Malacky
Okres: Malacky
Kraj: Bratislavský kraj
Druh: Objekty
Typ: Predaj
Typ objektu: Obchodné priestory
Iné:
Cena v RK

Popis nehnuteľnosti

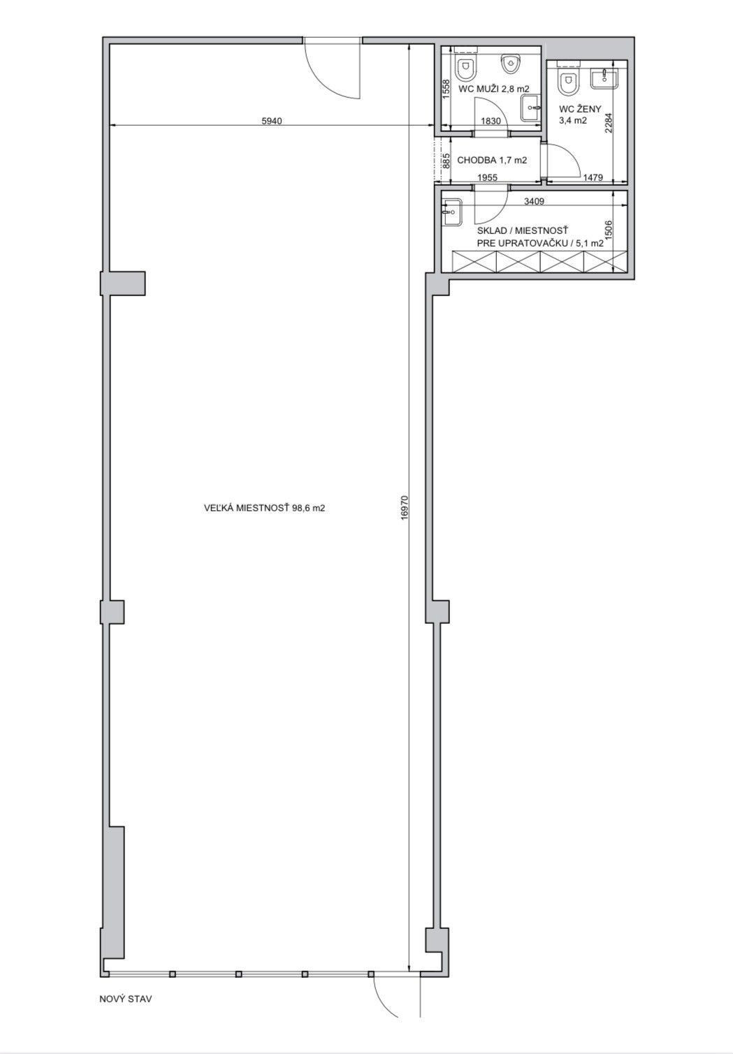
Ponúkame na predaj obchodné priestory s celkovou výmerou 112 m2 v Malackách na Záhoráckej ulici. Priestory sa nachádzajú na prízemí polyfunkčnej budovy priamo na hlavnej ulici. Obchodný priestor prešiel kompletnou rekonštrukciou. Stropy, steny, stropne osvetlenie, kúrenie, odsávanie a svetlo na senzor. Novo vybudované samostatné pánske WC, dámske WC a priestor na využitie napr. kuchyňa alebo kancelária s umývadlom.
Presklenie priestorov je z kaleného skla a bezpečnostných dverí. Má nakladaciu rampu a zabezpečenie.
Priestor je vhodný pre kaviareň, show room , obchodný priestor.


Záujemca neplatí žiadnu províziu pre RK.
Ďalšie informácie Vám poskytneme v našej realitnej kanc. na 0948 854 777 v pracovné dni od 9 do 18 hod.

Vlastnosti

Status:
aktívne
Stav:
úplne prerobený
Úžitková plocha:
112 m2
Balkón:
nie
Vykurovanie:
spoločné
Status:
aktívne
Stav:
úplne prerobený
Úžitková plocha:
112 m2
Balkón:
nie
Vykurovanie:
spoločné

Pozrieť na mape

Kontaktný formulár

Podobné nehnuteľnosti